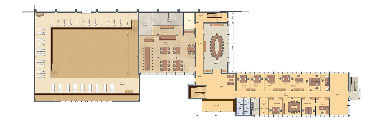
Unsere Leistung:
- Bestandszeichnungen
- Entwurf und Planung
- Perspektiven
- Bauantrag und Ausführung
- Feuerwehrpläne







